设备用途
用于防盗门/防火门/医疗门/净化门等各类钢制、不锈钢门框卷料开平,并按长度需求予以切断。

作业原理
卷料送料后,通过滚筒挤压的方式实现卷料的开平,通过液压冲剪的方式,实现长度裁剪。

产品特色
● 全自动化作业,一个普工即可操作;
● PLC控制,精准把控裁剪长度;
● 体积小巧,设计精美,最小化占地面积;
技术参数
技术参数 | 参考指标 |
进料板厚 | (0.2-1.8)mm,根据客户需求定制 |
进料板宽 | (100-600)mm,根据客户需求定制 |
生产速度 | (0-8)m/min,可调整 |
主机功率 | 5.5kw |
细节展示
1、放料架(选配):用于卷料的放置,实现自主送料

● 可按需选配一台放料架,最大可放置重量5T;
● 放料架采用手摇锁紧+卡扣固定的方式,双重保障,确保卷料不会滑落;
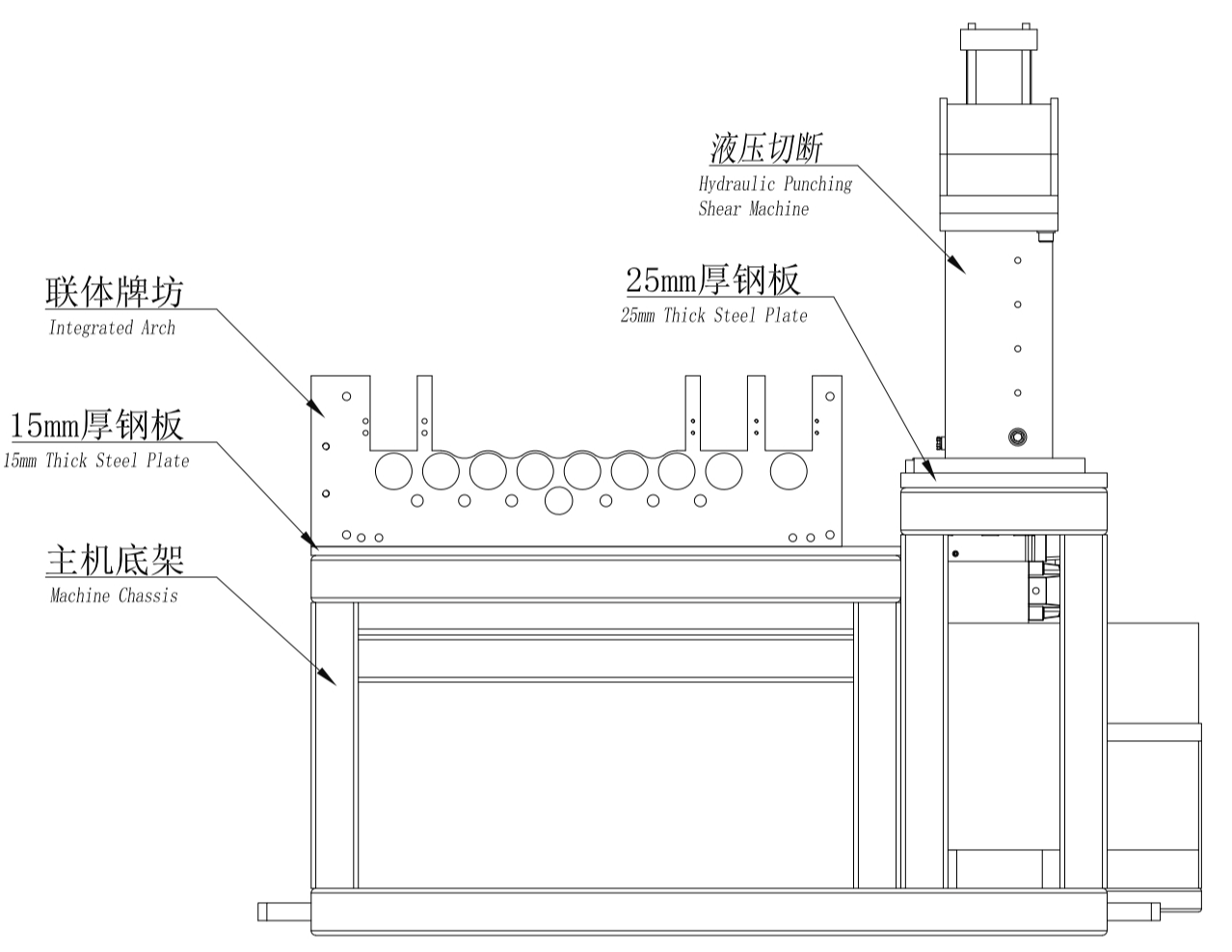
2、主机机架:设备主体结构,是设备的“脊椎骨”

● 主机底架采用方管拼焊而成,拼焊结构经过专业的受力分析,确保平稳扎实;
● 牌坊采用Q235大板一次切割成型,并经由数控龙门铣加工而成,确保工件的精准;
● 牌坊和底架之间加铺了12mm厚钢板,以此保障牌坊的水平性;
● 切断机架和底架之间加铺了25mm厚钢板,以此保障切断的平稳性;
3、开平装置:用于各类卷料的辊压开平

● 采用上八下九共17辊滚压开平方式,挤压到位,开平效果极佳;
● 开平可按需进行上下调节,适用于各类厚度的卷料;
● 轧辊轮可按需进行镀铬处理,保障表面硬度,经久耐用不易磨损亦不易生锈;
4、传动装置:为辊压开平提供动力输出

● 采用立式减速机(电机/减速机二合一)带动齿轮传动结构,动力输出稳定且结构轻巧不占过多空间;
5、切断装置:用于各类卷料的长度裁剪

● 切刀模具采用Cr12Mov材质,经久耐用;
● 刀口做倾斜设计,使得剪切阻力减小,更加顺畅;
● 切断采用了液压加压的方式,冲压力度大,裁剪面平整无毛刺,裁剪速度快,噪音小;
● 滚压元件均采用进口或国内一线品牌产品,经久耐用;
6、出料架(选配):用于裁剪完毕短料的接取
● 可按需选配一套出料架,切断完毕自主接料,便于完工料框的下料;
● 出料架设有高低调节装置,可按需调整高度,灵动性高;
7、电控系统:设备控制系统,是设备的大脑

● 整机采用PLC控制系统,可自定义裁剪长度及裁剪数量,操作方便,一教就会,对工人技能需求低;
随机资料
序号 | 名称 | 数量 | 备注 |
1 | 发货清单 | 1份 | |
2 | 验收报告 | 1份 | |
3 | 使用说明书 | 1套 | |
4 | 电气原理图 | 1套 |
用户方应给予的配合
1、电源:380V,50HZ,电压波动量为-5%~+10%;当电压有较大波动,用户须配备稳压器,否则会导致低压电器处于非正常工作状态,电器件寿命降低或损坏、加工产品报废、电机报警导致停止工作、电脑硬盘损坏等问题。
2、气源:输出 0.6Mpa 以上,干燥清洁的压缩空气,供气量 0.3 立方米/分钟;如果空气干燥程度不够,用户应配备冷干机,否则会出现气动部件进水致使活塞摩擦阻力变大,磨损密封圈导致漏气等问题,尤其冬天容易结冰,导致气动部件损坏加剧。
3、环境温度:0°C~+40°C;低于 0°C 会导致油水分离器、气罐等可能有水的部件结冰,润滑油因温度过低导致过于粘稠,影响润滑效果,从而导致部件的损坏或失效。
4、环境湿度:相对湿度 20~80%RH(非冷凝)。
5、远离强振源及电磁干扰;如果距离过近用户须配备滤波器,否则会引起电脑屏幕闪动、LED 灯闪动、驱动器报警、编码器异常,或干扰其他临近设备等问题。
6、少灰尘、无有害及腐蚀性气体的环境。
7、设备工作时禁止断电,并保持电压稳定。
如您有任何问题,欢迎您留言给我们,我们会在第一时间回复您。
Related Products